Как визуализация меняет восприятие дома заказчиком
В работе с клиентами существует негласный парадокс: чем дольше длится проект, тем сложнее заказчику удержать в голове целостный образ будущего дома. Архитектор мыслит объемами, сечениями и узлами, но клиент мыслит эмоциями. Инструментом, который превращает абстрактное «да, тут будет стена» в личное «это моя гостиная», является визуализация дома.
Однако мало кто из заказчиков осознает, что их восприятие дома кардинально меняется в зависимости от того, на каком этапе и в каком качестве они видят картинку. Пройдя путь от схематичного наброска до виртуальной реальности, клиент, принимает решение с полной эмоциональной привязанностью к этому дому.
Визуализация меняет ваше отношение к дому еще до того, как заложен первый кирпич.
Многие думают, что визуализация дома нужна только для того, чтобы «посмотреть цвет обоев». На самом деле её влияние на восприятие дома гораздо глубже. Это инструмент эмоционального присвоения пространства.
Давайте разберем это на примере одного из самых популярных наших проектов «ТУРИН-146» https://www.indivi-dom.ru/catalog/karkasno-panelnye-doma/turin-146-dom/
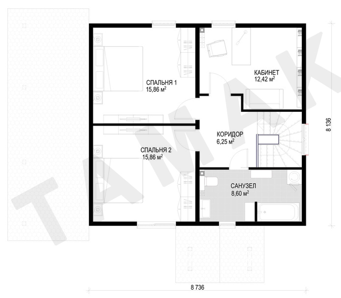
Сначала мы видим чертежи:
Потом фасады в 2D-изображении:
И вот 3 эффекта, которые происходят с нашим мозгом, когда мы видим качественную 3D-картинку:
1. Эффект «Уже дома»
Пока проект существует только в чертежах, это абстракция: линии, цифры, масштабы. Как только вы видите фотореалистичную картинку с мягким светом — мозг перестает анализировать и начинает «чувствовать». Возникает ощущение, что вы уже там живете. Это снижает уровень тревоги и сомнений при принятии решений.
2. Эффект масштаба
Человек плохо читает чертежи. Мы можем посмотреть на план и решить: «Дом какой-то маленький или наоборот большой для нашей семьи». Но визуализация позволяет обмануть стереотипы восприятия: показать, как будет выглядеть дом в натуральную величину, вписанный в ландшафт вашего участка.
3. Эффект «примерки»
3D позволяет совершать ошибки… «виртуально». Гораздо дешевле и быстрее перекрасить стену в 3D-модели 10 раз, чем переделывать фасад дома в реальности. Когда вы видите финальный образ, исчезает страх «а вдруг не подойдет?». Вы влюбляетесь в результат заранее, а значит, процесс стройки проходит спокойнее.
Вывод:
3D-изображение — это мост между холодным расчетом архитектора и теплотой настоящего дома. Это не просто картинка, это ваша будущая жизнь, которую можно потрогать глазами уже сегодня.
Согласны? Замечали? После какой визуализации дом начинает казаться Вам «своим»?
Вариант 1 отделки дома ТУРИН-146
Вариант 2 отделки дома ТУРИН-146
Вариант 3 отделки дома ТУРИН-146
Вариант 4 отделки дома ТУРИН-146
Вариант 5 отделки дома ТУРИН-146
Вариант 6 отделки дома ТУРИН-146
Совет: если выбираете исполнителя (дизайнера, строительную компанию), всегда смотрите на портфолио 3D-визуализации. Если их картинки выглядят как фотографии из журнала, значит, они умеют думать объемно и заботятся о вашем конечном восприятии.
Свяжитесь с нашим менеджером — поможем подобрать оптимальные решения под ваш бюджет и пожелания!
Ваш дом ждет вас!

