Проект «Эгоист-229»: пространство, где встречаются роскошь и уют для вашей большой семьи
Мечтаете о доме, где каждый уголок дышит гармонией, а для самого дорогого — семьи и друзей — найдется особенное место? Одноэтажный особняк «Эгоист-229» площадью 326,49 м² — это не просто проект, это тщательно выверенная концепция жизни премиум-класса. Здесь продумана каждая деталь, чтобы превратить ежедневный быт в искусство наслаждения каждым моментом.
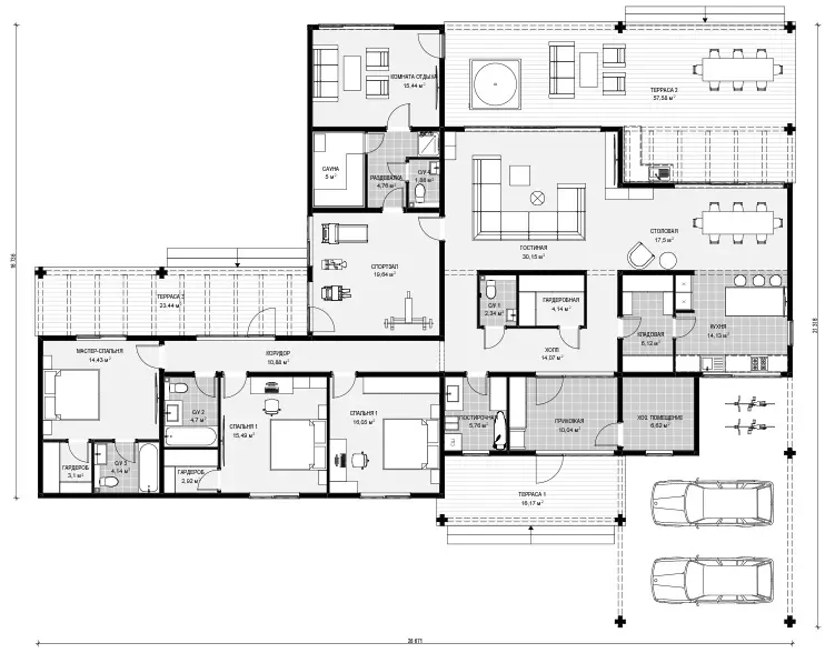
Простор для жизни и единения
- Сердце дома: войдя внутрь, вы оказываетесь в светлом, едином пространстве гостиной, столовой и кухни. Это идеальное место для семейных вечеров, праздников и неторопливых бесед. Панорамное остекление и выход на террасы стирают грань между интерьером и природой.
- Террасы для любого настроения: две просторные террасы — ваш личный курорт на заднем дворе. Одна станет сценой для шумных барбекю с друзьями, другая — тихим уголком для утреннего кофе или вечернего отдыха в кругу семьи.

Индивидуальность и приватность
-
Мастер-спальня вашей мечты: ваше личное убежище — просторная мастер-спальня с собственной ванной комнатой и гардеробной. Это место, где можно уединиться и восстановить силы в атмосфере полного покоя.
-
Гибкость планировки: помимо роскошной хозяйской спальни, проект включает еще две спальни. Их легко адаптировать под потребности семьи: обустроить детскую, кабинет для продуктивной работы или уютную гостевую комнату.
Здоровье и релаксация без выхода из дома
-
Ваш фитнес-центр: для тех, кто ценит активность, в доме предусмотрен отдельный спортзал. Тренируйтесь в любое удобное время, не тратя время на дорогу.
- Комплекс для восстановления: настоящей жемчужиной дома является зона с сауной. В нее входит парная, комната отдыха, раздевалка и санузел. Здесь вы сможете снять стресс, попариться с друзьями или провести сеанс полной релаксации.
Практичность и порядок
Мы позаботились не только о комфорте, но и о функциональности:
Вместительный навес для нескольких автомобилей и другого транспорта;
Отдельная гардеробная для верхней одежды, чтобы в прихожей всегда царил порядок;
Хозяйственное помещение для хранения сезонных вещей и инвентаря;
4 санузла, что исключает утренние очереди и обеспечивает комфорт для всех жильцов и гостей.
Технические характеристики проекта «Эгоист-229»:
Общая площадь: 326.49 м²
Площадь помещений: 229 м²
Площадь террас: 97.19 м²
Количество спален: 3
Количество санузлов: 4
Кабинет: 1
Дополнительно: сауна, техническое помещение, навес (гараж)
Проект «Эгоист-229» — это воплощение мечты о доме, где роскошь измеряется не квадратными метрами, а качеством жизни, вниманием к деталям и свободой для самореализации каждого члена семьи.
Для получения детального плана и расчёта стоимости свяжитесь с нашим менеджером — поможем подобрать оптимальные решения под ваш бюджет и пожелания!
Ваш дом ждет вас!

